Offer №3933. Sell: А39
Basic information
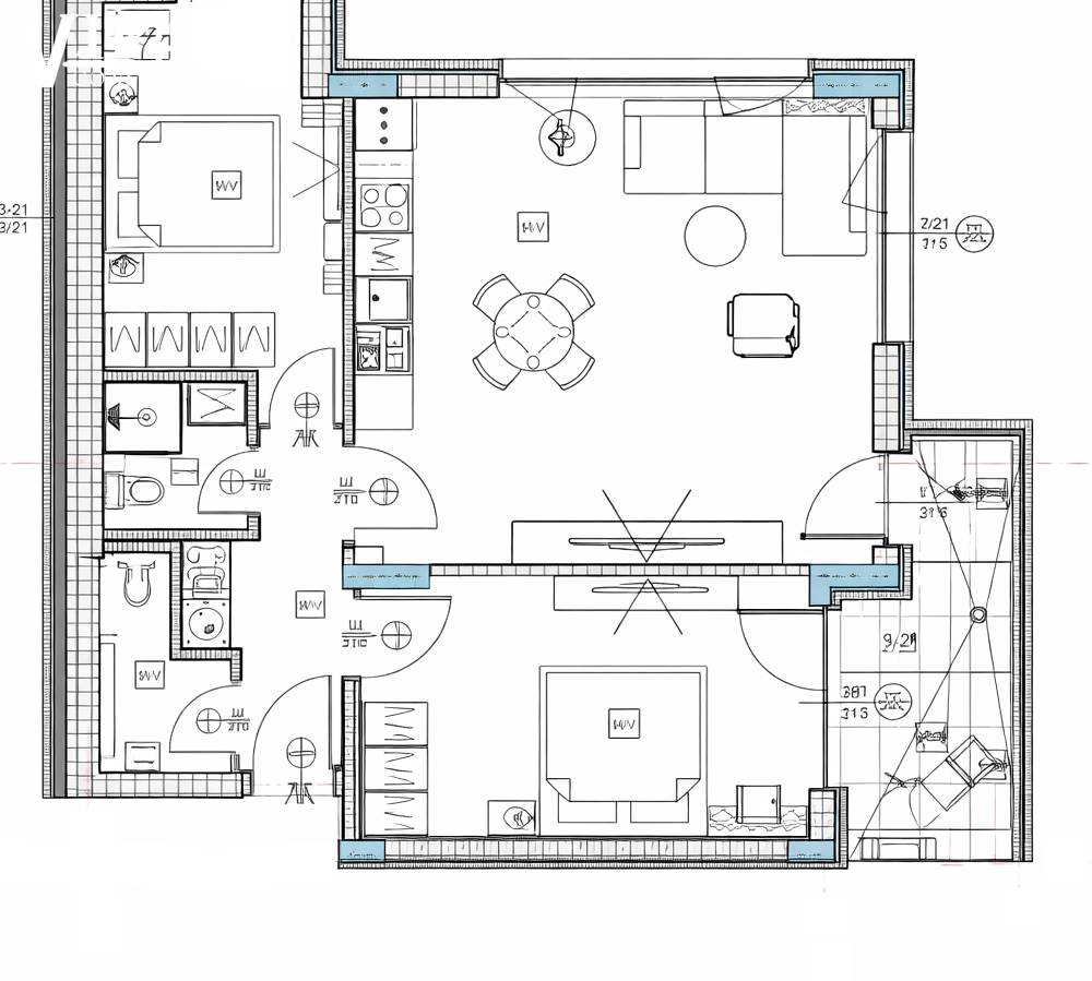
Total area: 93 м²
Built-up area: 76.70 m²
Completion stage: BDS (shell & core)
Floor: Floor 3 /
4
Year:
Orientation: East, South
Description
×
Request form
You can contact us through the form or directly with the broker.
