Offer №3930. Sell: А32
Basic information
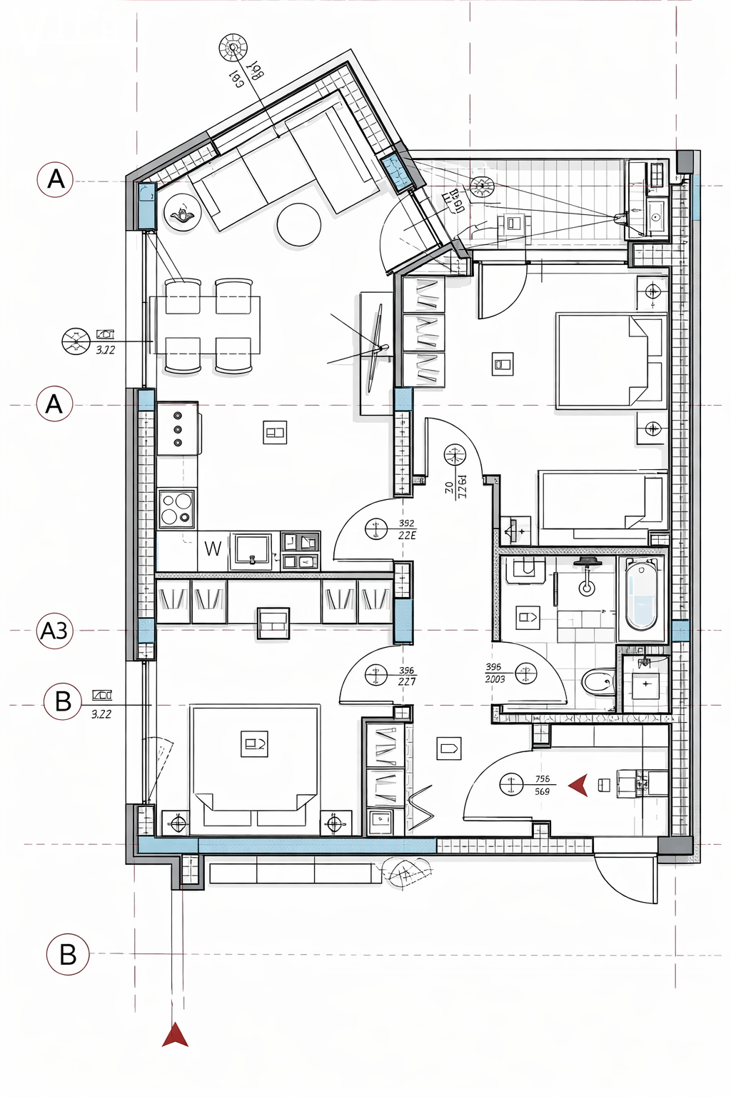
Total area: 78 м²
Built-up area: 66.10 m²
Completion stage: BDS (shell & core)
Floor: Floor 3 /
4
Year:
Orientation: West, North
Description
×
Request form
You can contact us through the form or directly with the broker.
