Sold
Offer №3921. Sell: 5
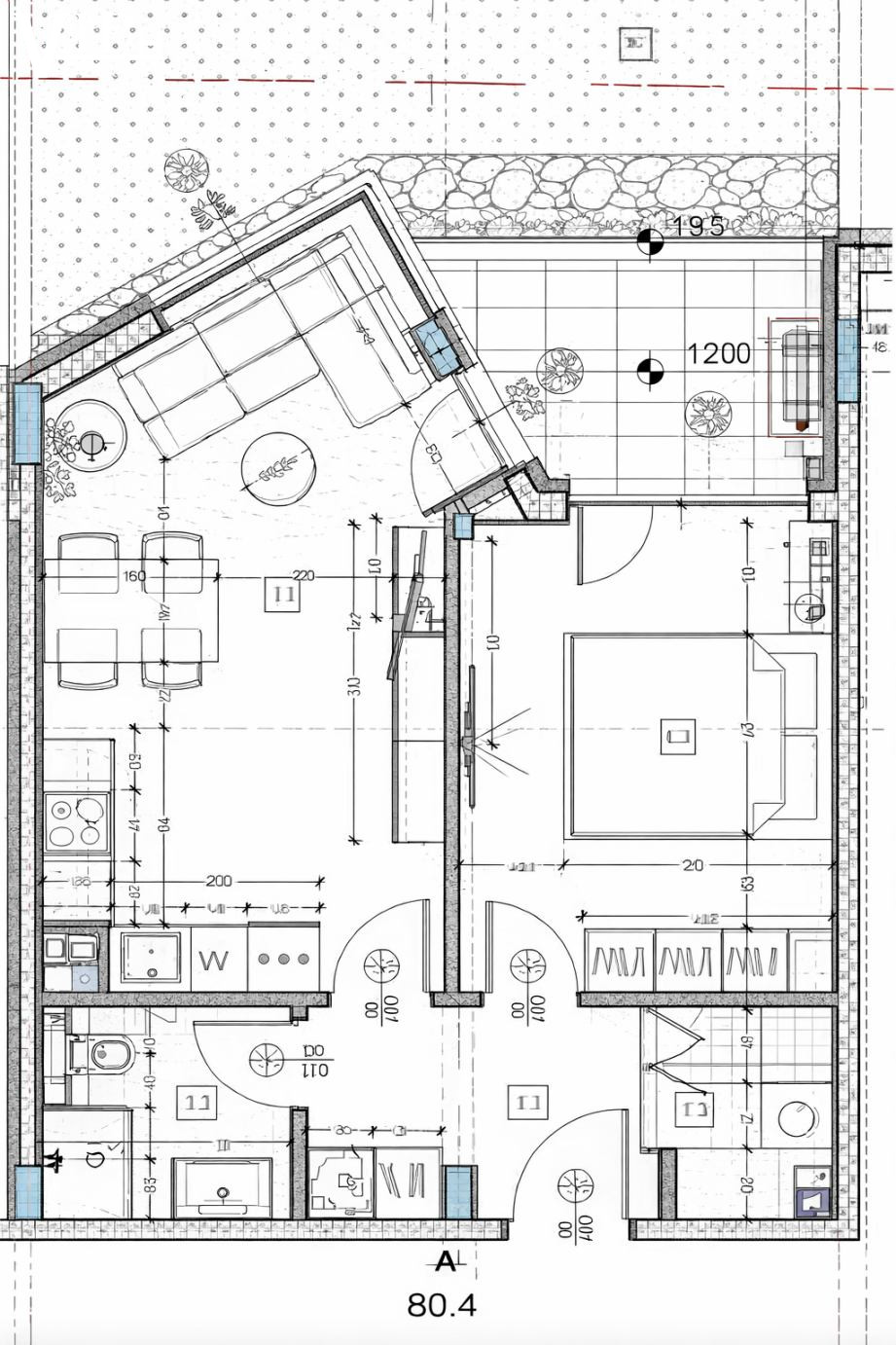
Basic information
Total area: 65 м²
Built-up area: 50.40 m²
Completion stage: BDS (shell & core)
Floor: Floor 1 /
4
Year:
2028
Orientation: West
Description
×
Request form
You can contact us through the form or directly with the broker.
