Offer №3920. Sell: А41
Basic information
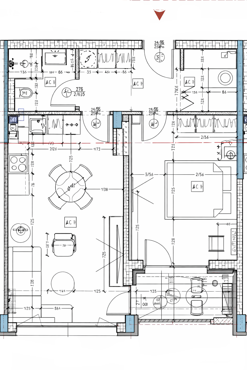
Total area: 66 м²
Built-up area: 58.00 m²
Completion stage: BDS (shell & core)
Floor: Floor 3 /
4
Year:
Orientation: East
Description
Предлагаме за продажба двустаен апартамент в нова модерна сграда в кв. Виница, състощ от дневен тракт с кухня, спалня, баня с тоалетна, тераса, коридор, ниша за вграден гардероб или портманто и килер. Жилището се издава по БДС на шпакловка и замазка.
Плащането е разсрочено до акт 16. Към имота има възможност за закупуването на паркомясто.
За повече информация ни потърсете на посочените телефони за връзка.
×
Request form
You can contact us through the form or directly with the broker.
