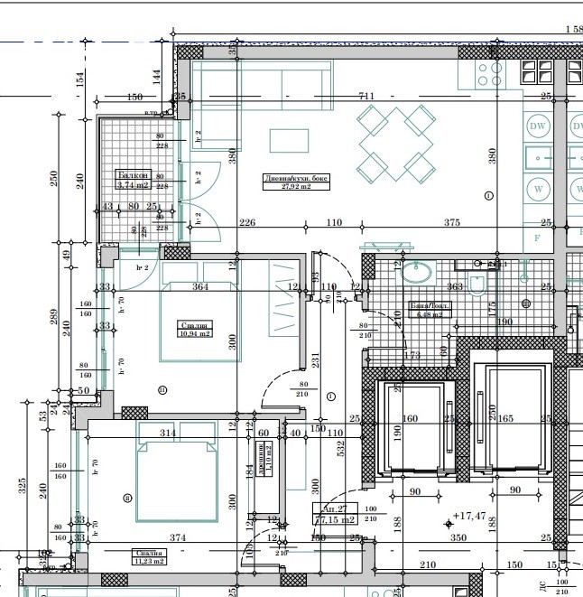
Offer №3800. Sell: апартамент 27
Basic information
Total area: 93 м²
Built-up area: 77.15 m²
Completion stage: BDS (shell & core)
Floor: Floor 8 /
11
Year:
2027
Orientation: West
Description
Request form
You can contact us through the form or directly with the broker.

