Sold
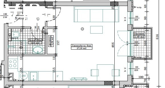
Offer №3799. Sell: апартамент 24
Basic information
Total area: 50 м²
Built-up area: 41.00 m²
Completion stage: BDS (shell & core)
Floor: Floor 7 /
11
Year:
2027
Orientation: East
Description
Request form
You can contact us through the form or directly with the broker.

