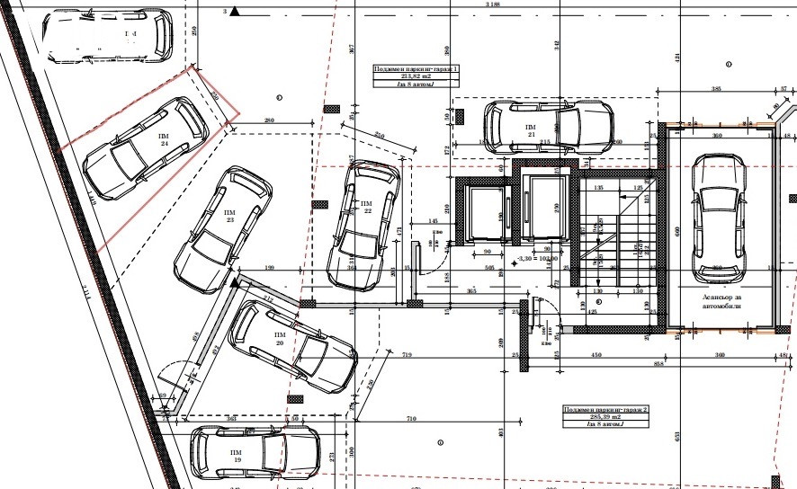
Offer №3787. Sell: подземно паркомясто 24
Basic information
Total area: 38 м²
Built-up area: 18.60 m²
Completion stage: BDS (shell & core)
Floor: Underground level /
11
Year:
2027
Orientation: - No -
Description
Request form
You can contact us through the form or directly with the broker.

