Sold
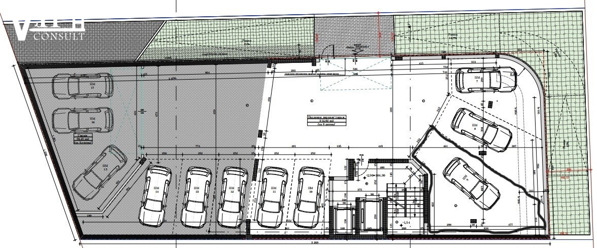
Offer №3735. Sell: parking space 9
Basic information
Total area: 13 м²
Built-up area: 12.50 m²
Completion stage: BDS (shell & core)
Floor: Underground level /
10
Year:
2027
Orientation: - No -
Description
parking space 9
Request form
You can contact us through the form or directly with the broker.
