Sold
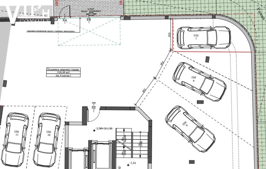
Offer №3733. Sell: parking space 7
Basic information
Total area: 47 м²
Built-up area: 23.46 m²
Completion stage: BDS (shell & core)
Floor: Underground level /
10
Year:
2027
Orientation: - No -
Description
parking space 7
Request form
You can contact us through the form or directly with the broker.
