Sold
Offer №3705. Sell: apartment 32
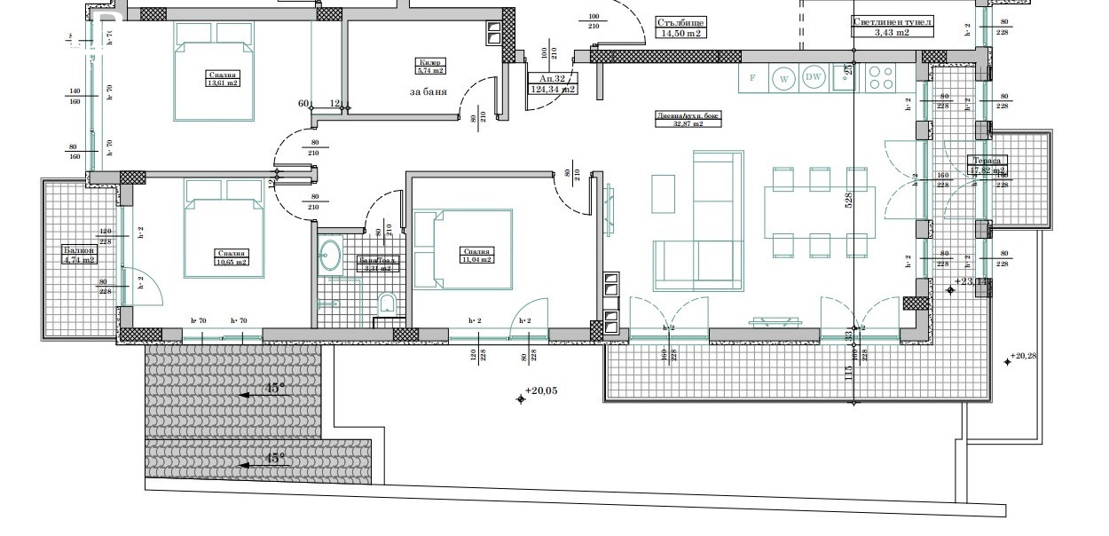
Basic information
Total area: 151 м²
Built-up area: 124.34 m²
Completion stage: BDS (shell & core)
Floor: Floor 9 /
11
Year:
2027
Orientation: West, East
Description
Request form
You can contact us through the form or directly with the broker.

