Sold
Offer №3703. Sell: suite 29
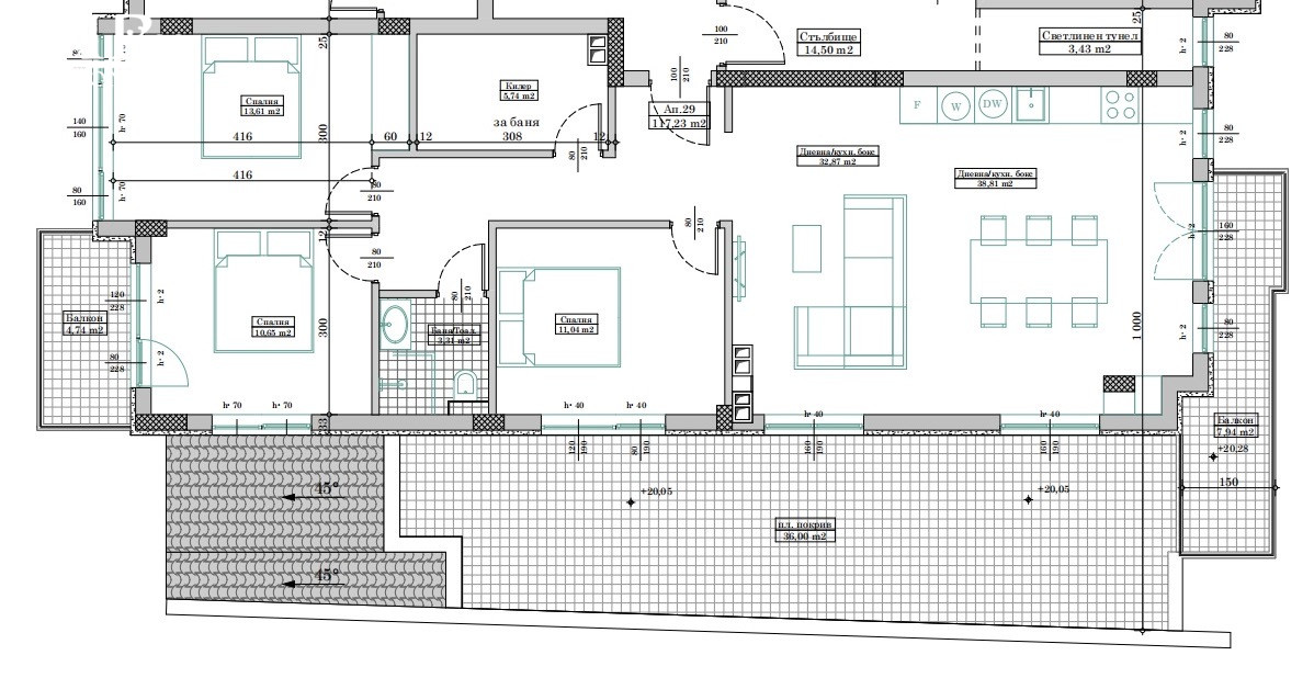
Basic information
Total area: 142 м²
Built-up area: 117.23 m²
Completion stage: BDS (shell & core)
Floor: Floor 8 /
11
Year:
2027
Orientation: West, East, East–West
Description
Request form
You can contact us through the form or directly with the broker.

