Sold
Offer №3691. Sell: suite 9
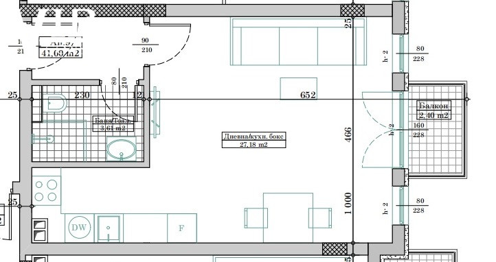
Basic information
Total area: 50 м²
Built-up area: 41.00 m²
Completion stage: BDS (shell & core)
Floor: Floor 4 /
11
Year:
2027
Orientation: East
Description
We offer for sale a spacious one bedroom apartment with full east exposure, providing light and comfort throughout the day. The apartment is located in a modern residential building with quality performance and convenient infrastructure.
Features:
- Functional layout of the rooms
- Payment scheme
- Option to purchase a parking space
- Excellent location with quick access to major thoroughfares and services
Suitable for both private use and as a high potential investment.
0888 04 49 13 Victoria Yastrebova
Request form
You can contact us through the form or directly with the broker.

