Sold
Offer №3689. Sell: suite 10
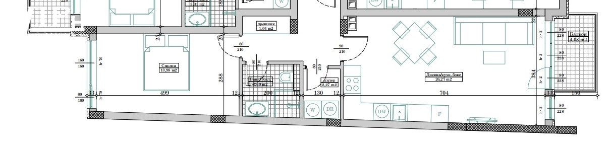
Basic information
Total area: 80 м²
Built-up area: 66.01 m²
Completion stage: BDS (shell & core)
Floor: Floor 4 /
11
Year:
2027
Orientation: West, East
Description
Request form
You can contact us through the form or directly with the broker.

