Оферта №3838. Продава: двустаен апаратмент Виница
Основна информация
Описание
VIP CONSULT VARNA
Ви представя!
🏡 НОВ ПРОЕКТ Двустаен апартамент с морска панорама във Виница 🌊
Представяме ви четиристаен апартамент в нова модерна жилищна сграда в кв. Виница, Варна.
Сградата се отличава с висококачествено строителство, съвременна архитектура и впечатляваща морска гледка още от кота 0!
✨ Характеристики на имота:
Етаж: 2 от 5
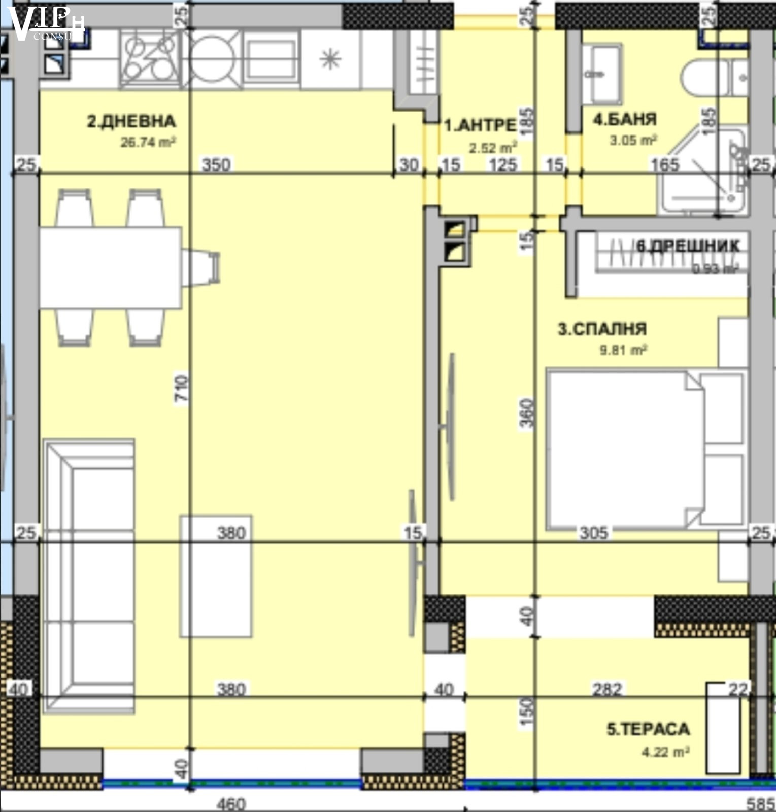
Общa площ: 61.88 кв.м
Разпределение: просторна дневна с кухненски бокс, една спалня, баня с тоалетна, тераса
Дизайнерско изпълнение с внимание към всеки детайл
Светли помещения с южно изложение и морска панорама
📍 Локация:
Тиха и зелена част на кв. Виница, с лесен достъп до центъра на Варна, морската градина и плажната ивица. В близост до магазини, училище, детска градина и спирки на градски транспорт.
🚗 Допълнително:
Възможност за закупуване на паркомясто или гараж
Идеален избор както за семейно жилище, така и за инвестиция!
Различни схеми на плащане.
📞 Свържете се с нас за повече информация и оглед!- 0897829129
Форма за запитване
Можете да се свържете с нас чрез формата или директно с брокера.




