Sell : къща за семейно щастие и спокойствие – с. Константиново, само на 10 км от Варна
Basic information
Total floors:
Description
За селото
Константиново е едно от предпочитаните варненски села за живеене, благодарение на редовната автобусна линия № 37 (Варна – Константиново), която осигурява бърза и удобна връзка с града.
В населеното място има училище, детска градина и медицински пункт, което го прави изключително подходящо за семейства с деца.
Все повече млади семейства избират Константиново за свой дом – място, където градският комфорт среща тишината на селския живот.
🏠 За имота
Имотът впечатлява с разгърната площ от 1 130 кв.м и застроена площ от 377 кв.м, разположен в просторен и равен двор от 940 кв.м.
Къщата е на два етажа, като първият е завършен до „груб строеж“, а строителната документация за целия проект е напълно налична – възможност новият собственик да я завърши по свой вкус.
🏡 Разпределение по проект
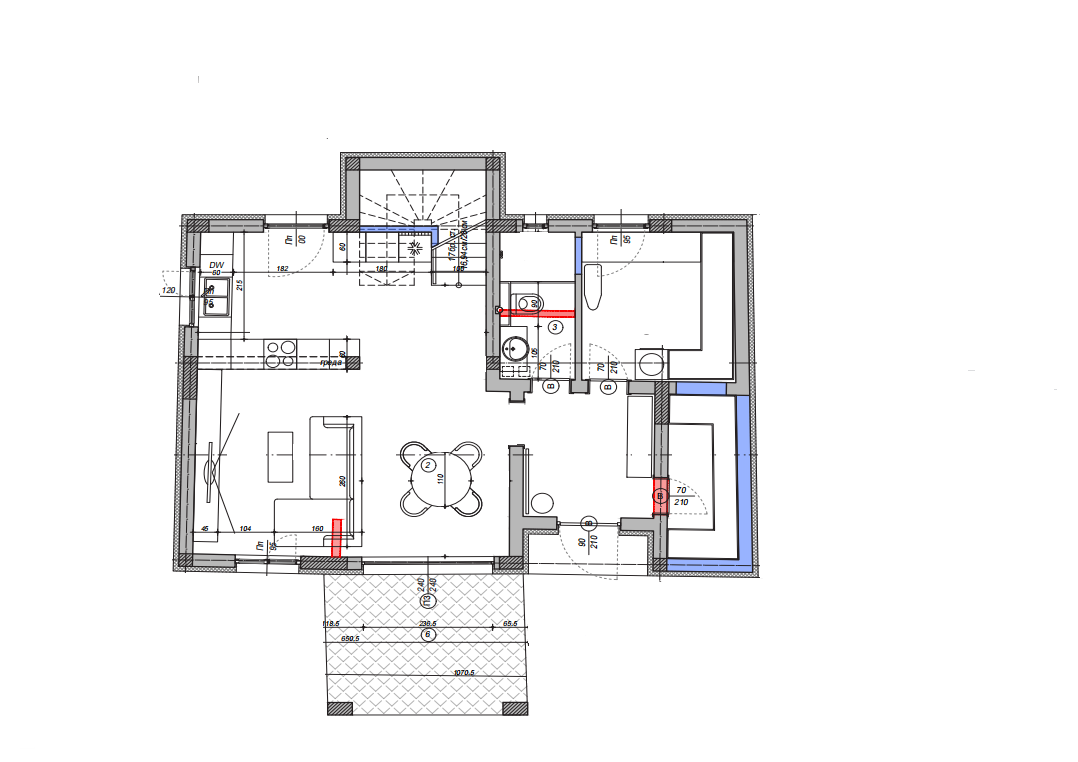
Първи етаж:
Просторна дневна (34 кв.м) – идеалното място за семейни събирания и уютни вечери. Големите прозорци осигуряват естествена светлина, а пространството предлага възможност за кът за релакс пред камина или гледка към двора.
Антре (6 кв.м) – приветливо и функционално пространство.
Две санитарни помещения, едното от които е собствено към спалнята.
Спалня (8,67 кв.м) – удобна и практична, подходяща за гости или за по-възрастен член на семейството.
Веранда, от която се открива гледка към двора – прекрасно място за сутрешно кафе или семейна вечеря на открито.
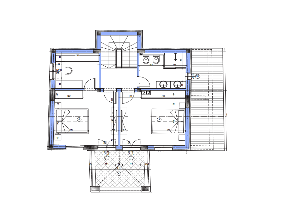
Втори етаж:
Две просторни спални (15,71 кв.м и 15,83 кв.м) – създадени за комфорт, светлина и уединение.
Коридор (8,56 кв.м), осигуряващ плавен достъп до всички помещения.
Гардеробно помещение (6,96 кв.м) и баня с тоалетна (6,94 кв.м).
Тераса (8,96 кв.м) – чудесно място за сутрешна чаша кафе или за наслада на гледките и спокойствието.
🌳 Двор и допълнителни удобства
Дворът от 940 кв.м е равен и просторен – подходящ за семейство с деца или за любителите на градината.
По проект е предвидено изграждане на барбекю зона, идеална за посрещане на гости и приятели.
Към имота има и гараж за два автомобила, а над него е проектирана площадка за отдих и релакс – прекрасно място за летни вечери под открито небе.
💫 Защо да изберете този имот?
Идеален е за семейство, което търси спокойствие, уют и сигурност, без да се лишава от удобството на близостта до Варна.
В селото има всички необходими удобства за ежедневен живот – училище, детска градина, медицински пункт, магазини и редовен транспорт.
Големият двор и възможността за довършване по проект дават шанс да изградите дом според своя стил и нужди.
Спокойната атмосфера и красивата природа правят имота перфектен за пълноценен семеен живот.
✨ Този имот е идеален избор за семейства, които търсят дом с душа и потенциал – място, където всеки детайл може да носи Вашия личен почерк.
Дом, създаден от Вас, за Вас.
Location
с. Константиново
Request form
You can contact us through the form or directly with the broker.





