Offer №3964. Sell: 27
Basic information
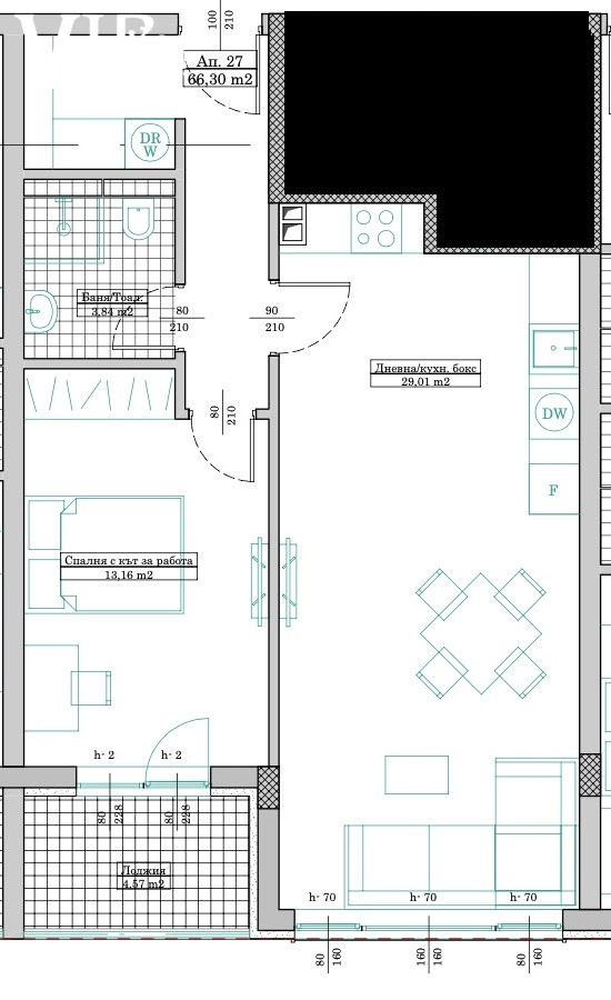
Total area: 76 м²
Built-up area: 66.30 m²
Completion stage: BDS (shell & core)
Floor: Floor 6 /
11
Year:
2028
Orientation: South
Description
Към апартамента има изба
×
Request form
You can contact us through the form or directly with the broker.
