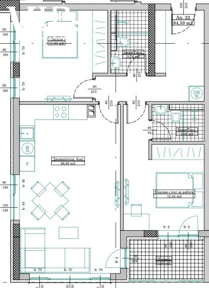
Offer №3963. Sell: 22
Basic information
Total area: 96 м²
Built-up area: 84.59 m²
Completion stage: BDS (shell & core)
Floor: Floor 5 /
11
Year:
2028
Orientation: Southwest
Description
Към апартамента има изба и полупокрито паркомясто
×
Request form
You can contact us through the form or directly with the broker.
