Offer №3961. Sell: 2
Basic information
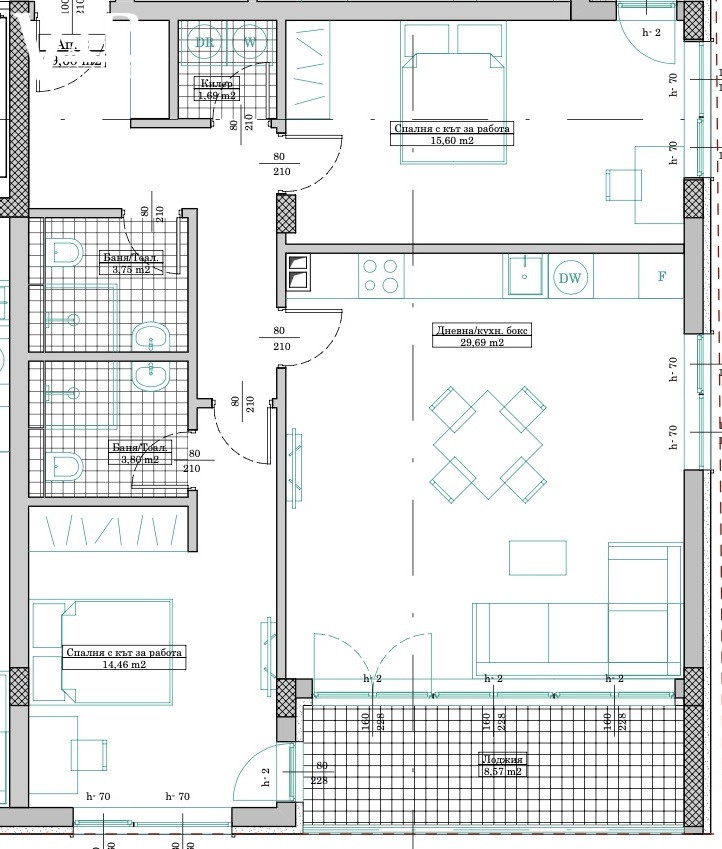
Total area: 113 м²
Built-up area: 99.60 m²
Completion stage: BDS (shell & core)
Floor: Floor 2 /
11
Year:
2028
Orientation: Southeast
Description
×
Request form
You can contact us through the form or directly with the broker.
