Offer №3960. Sell: 1
Basic information
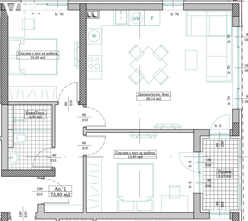
Total area: 84 м²
Built-up area: 73.83 m²
Completion stage: BDS (shell & core)
Floor: Floor 2 /
11
Year:
2028
Orientation: Northeast
Description
Възможност за закупуване на паркомясто за 15 000 €
×
Request form
You can contact us through the form or directly with the broker.
