Offer №3950. Sell: 32
Basic information
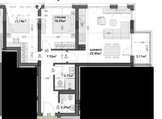
Total area: 90 м²
Built-up area: 90.00 m²
Completion stage: BDS (shell & core)
Floor: Floor 5 /
10
Year:
2028
Orientation: Northeast
Description
×
Request form
You can contact us through the form or directly with the broker.
