Offer №3764. Sell: Тристаен апартамент
Basic information
Total area: 108 м²
Built-up area: 95.40 m²
Completion stage: BDS (shell & core)
Floor: Floor 1 /
5
Year:
2027
Orientation: East
Description
VIP CONSULT VARNA
🏠 Тристаен апартамент в кв. Кайсиева градина, Варна
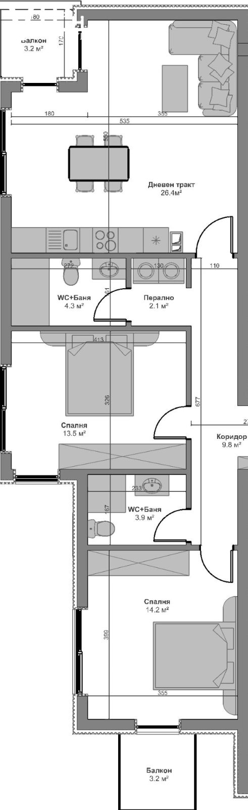
Предлагаме тристаен апартамент с обща площ 107.80 кв.м., разположен в нова, модерна сграда в един от най-спокойните и предпочитани квартали на Варна – Кайсиева градина.
Апартаментът се състои от:
Просторна дневна с кухненски бокс
Спалня
Спалня
Две санитарни помещения
Коридор
Тераса
Втора тераса
Жилището се намира в нова сграда с асансьор и съвременни общи части. Подходящо е както за живеене, така и за инвестиция с цел отдаване под наем.
За повече информация се обадете на посочения телефон
Брокер - Мая Христова
За контакт - 0897829129
Request form
You can contact us through the form or directly with the broker.


