Продава : едностаен апартамент до МакДрайв

138 850 €
Цена на м²: 2 500 €
Населено място: Варна
Район: Зимно Кино Тракия
Площ: 56 м²
Едностаен апартамент
Изпрати във Viber Разпечатай офертата

Основна информация

Район: Зимно Кино Тракия
Площ:
55.54
м²
Етаж 5
Етажи общо
8
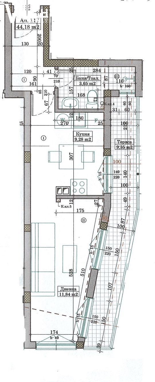
Застроена площ:
44.18
м²
Спални: 
Не
Тераси: 
1
Гараж: Не
Паркомясто: Не
Мазе: Да
Асансьор: Да
Тип строителство: Тухла
Обзавеждане: БДС
Година: 
2024

Описание

Предлагаме за продажба просторен едностаен апартамент с АКТ 16, разположен в модерна сграда, в непосредствена близост до МакДрайв и с бърз достъп до центъра на града.

📍 Етаж: 5 от 8

Разпределение:  

Просторна дневна с кухня и трапезария 

Баня с тоалетна

Антре

Тераса

Изба

Апартаментът се намира в нова сграда с отлични общи части и удобна локация. Близо до магазини, спирки на градски транспорт, училища и основни пътни артерии.

✔ Подходящ както за живеене, така и за инвестиция.

📞 За повече информация и оглед   свържете се с нас!

Локация
Геолокация

Локация

×

Форма за запитване

Можете да се свържете с нас чрез формата или директно с брокера.