Продава : тристаен апартамент до МакДрайв

294 750 €
Цена на м²: 2 500 €
Населено място: Варна
Район: Зимно Кино Тракия
Площ: 118 м²
Тристаен апартамент
Изпрати във Viber Разпечатай офертата

Основна информация

Район: Зимно Кино Тракия
Площ:
117.90
м²
Етаж 2
Етажи общо
8
Застроена площ:
100.71
м²
Спални: 
2
Тераси: 
1
Гараж: Не
Паркомясто: Не
Мазе: Не
Асансьор: Да
Тип строителство: Тухла
Обзавеждане: БДС
Година: 
2024

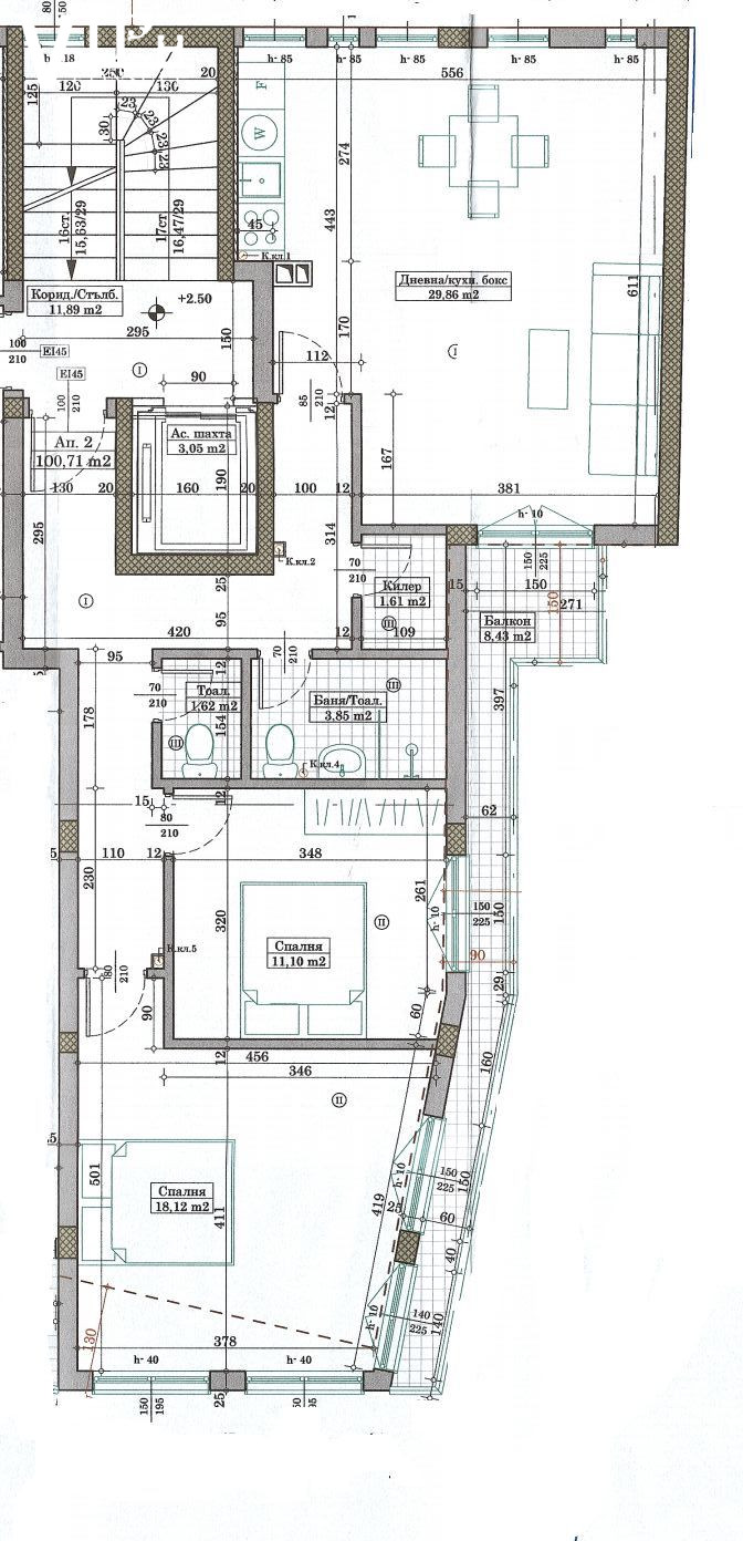
Описание

Предлагаме за продажба просторен тристаен апартамент с АКТ 16, разположен в модерна сграда, в непосредствена близост до МакДрайв и с бърз достъп до центъра на града.

📍 Етаж: 2 от 8☀ Изложение: Юг   светъл и топъл апартамент през целия ден📐 Площ: 117,90 кв.м

Разпределение:  

Просторна дневна с кухня и трапезария  

Две комфортни спални  

Баня с тоалетна  

Отделна тоалетна   

Килер   

Тераса  

Коридор

Апартаментът се намира в нова сграда с отлични общи части и удобна локация   близо до магазини, спирки на градски транспорт, училища и основни пътни артерии.

✔ Подходящ както за живеене, така и за инвестиция.

📞 За повече информация и оглед   свържете се с нас!

Локация
Геолокация

Локация

×

Форма за запитване

Можете да се свържете с нас чрез формата или директно с брокера.