Продава : двустаен апартамент Левски
124 631 €
Цена на м²: 1 619 €
Населено място: Варна
Район: Левски 1
Площ: 77 м²
Двустаен апартамент
Изпрати във Viber Разпечатай офертатаОсновна информация
Район: Левски 1
Площ:
77.00
м² Етаж 3
Етажи общо:
Етажи общо:
10
Застроена площ:
60.10
м²Спални:
1
Тераси:
1
Гараж: Не
Паркомясто: Не
Мазе: Не
Асансьор: Да
Тип строителство: Тухла
Обзавеждане: БДС
Година:
2027
Описание
Ексклузивно от VIP CONSULT VARNA
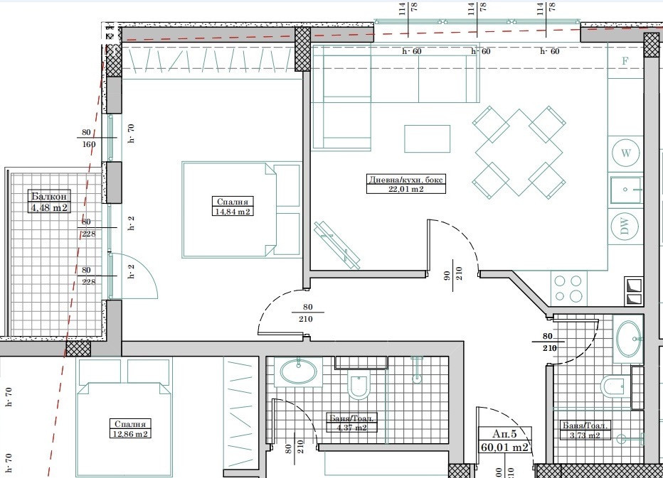
Предлагаме за продажба светъл и функционален двустаен апартамент с обща площ 77.00 кв.м, разположен на 3-ми етаж от 10-етажна сграда с асансьор.
📍 Характеристики на имота:
- Дневен тракт с кухненска част
- Спалня
- Коридор
- Баня и тоалет
- Тераса
Изложение: Изток/Запад гарантира естествена светлина и топлина през целия ден.
✅ Предимства:
Отлична квадратура и функционално разпределение
Подходящ както за живеене, така и за инвестиция
Добра локация : близо до Болница Света Марина, търговски обекти, училища, детски градини и др.
Възможност за външно или подземно паркомясто/гараж
За повече информация и огледи:0888028035
Брокер Мая Христова
Локация
Геолокация
Локация
×
Форма за запитване
Можете да се свържете с нас чрез формата или директно с брокера.

