Продава : тристаен апартамент в Изгрев
Основна информация
Етажи общо:
Описание
🏢 ЕКСКЛУЗИВНО ОТ VIP CONSULT VARNA
🔥 БЕЗ КОМИСИОНА ОТ КУПУВАЧА!
Тристаен апартамент – ново строителство (Етап: Акт 14), район Изгрев, Варна — инвестиция или бъдещ дом!
Разсрочено плащане до завършване на сградата.
Очакван срок за взимане на Акт 15 - 12 месеца.
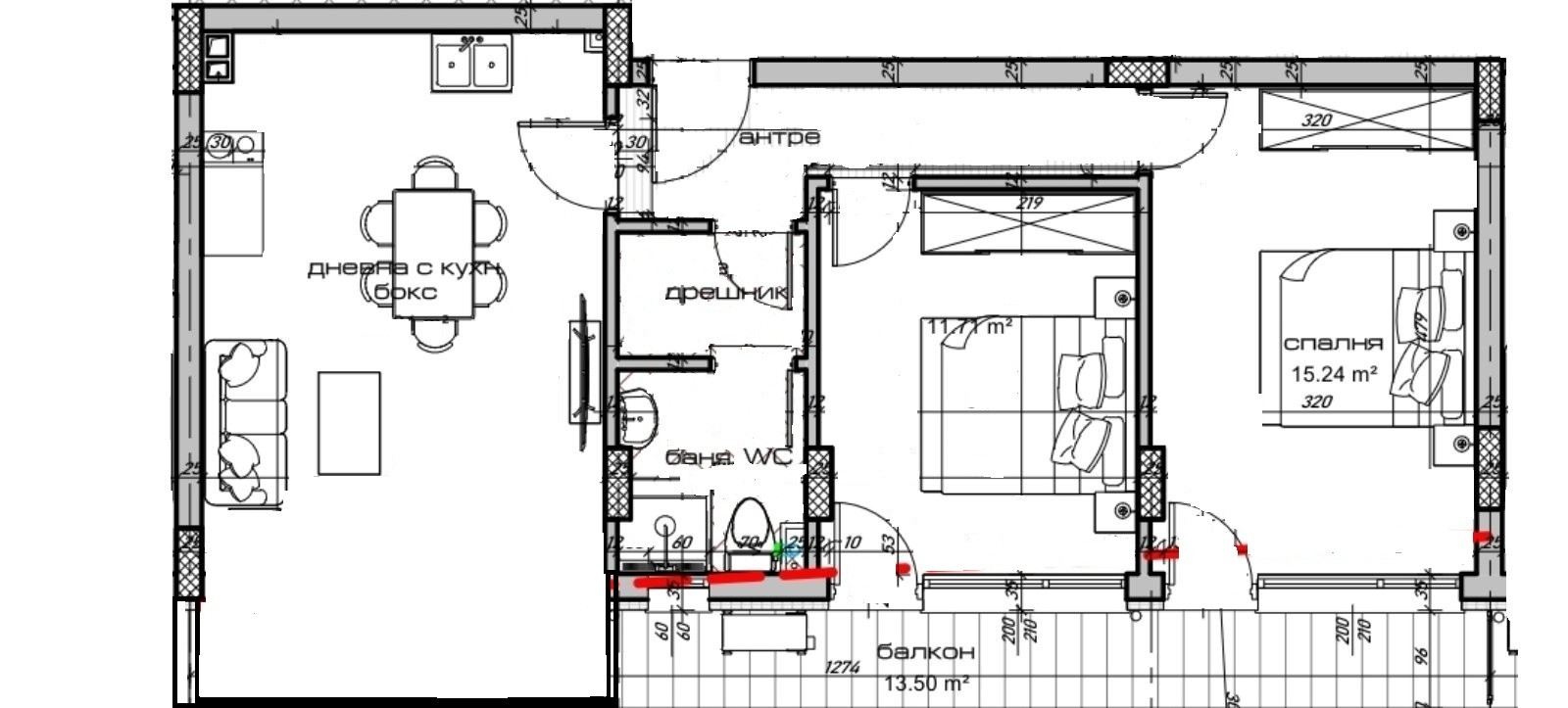
Предлагаме просторен тристаен апартамент (102 м², 1-ви етаж от 10) в сграда с Акт 14 — възможност да закупите сега на цена под завършен имот и да довършите по свой вкус.
🔹 Защо да обърнете внимание:
• Изложение: южно — много светлина през целия ден.
• Функционално разпределение: дневен тракт с кухня, спалня, детска/втора стая, баня с WC, коридор, тераса. Към имота има и изба.
• Отлична локация: на пешеходно разстояние до спирки, магазини, детски градини и училища; близост до болница „Св. Марина“ и ВМА — удобство за семейства и работещи.
• Ново строителство — тухла, асансьор, потенциал за модерен дизайн и довършителни работи според собствен вкус.
• Без комисиона от купувача (често предпочитана опция).
🔹 За кого е подходящ:
• Инвеститори — при довършване стойността може да се увеличи, особено в район с търсене.
• Млади семейства с визия — възможност сами да организират интериора.
• Хора, търсещи по-ниска цена с перспектива за растеж.
🔹 Условия и гъвкавост:
— Възможност за разсрочено плащане по етапи (по договаряне).
— Коректна документация: сградата е на етап Акт 14 — позволено е нотариално прехвърляне, правото на собственост се вписва веднага. (!)
— При наличен интерес — можем да съдействаме за контакт с банки, които финансират имоти на груб строеж.
Оставащи вноски
- Акт 15 - 18 520 евро
Акт 16 - 9260 евро
Прогнозна цена на апартамента след взимане на Акт 16 - 170 000 евро.
📞 За контакт: 0888 028 035
Локация
Локация
Форма за запитване
Можете да се свържете с нас чрез формата или директно с брокера.


