Оферта №3979. Продава: двустаен апартамент Кайсиева градина
Основна информация
Описание
Двустаен апартамент | Ново строителство | Кайсиева градина
Предлагаме за продажба двустаен апартамент в нова жилищна сграда – ново строителство, разположена в предпочитания квартал Кайсиева градина.
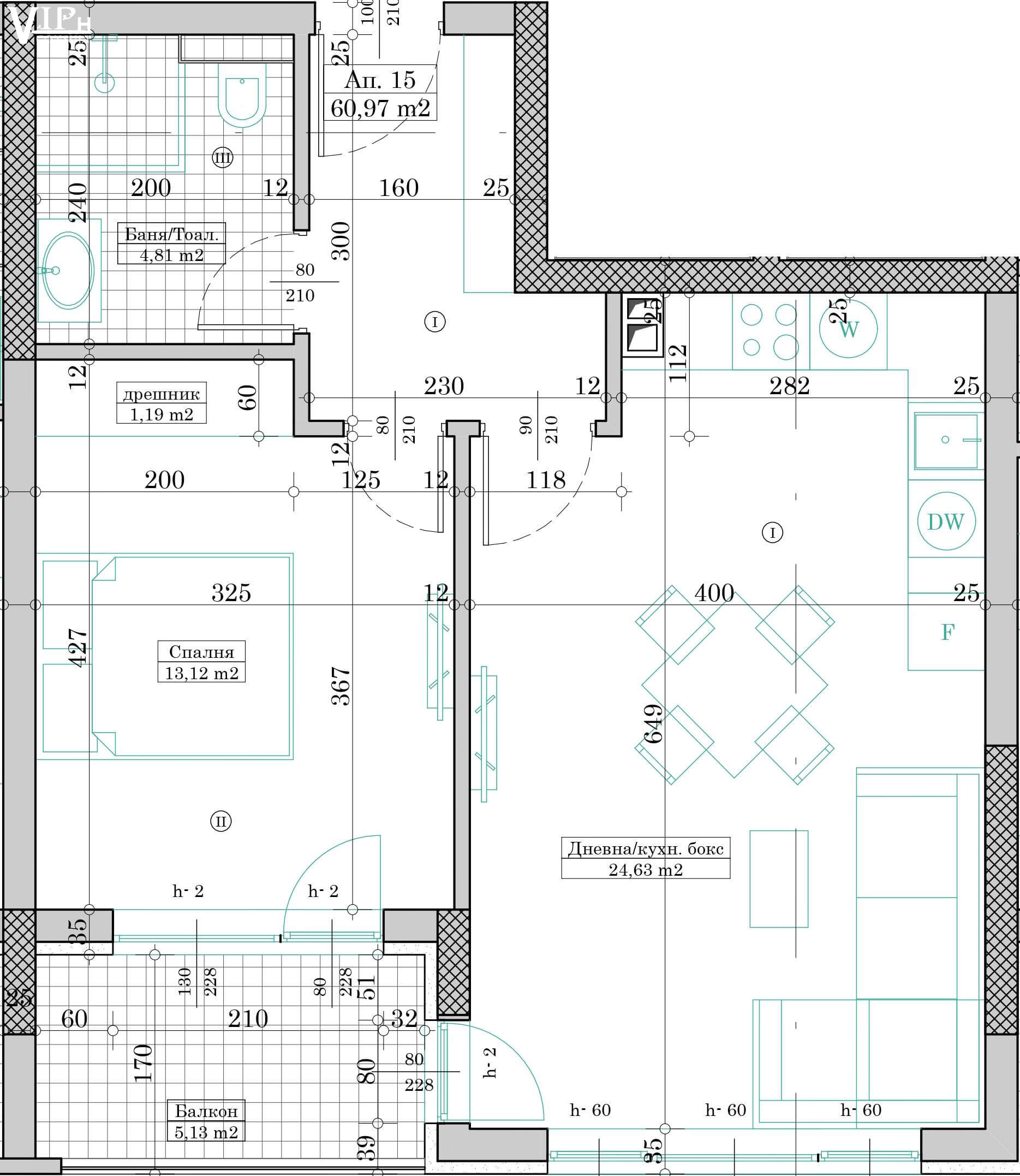
Имотът е с обща площ 70.33 кв.м, ситуиран на 4-ти жилищен етаж от общо 9 етажа в модерна сграда с асансьор.
Разпределение:
входно антре
дневна с кухненски бокс
спалня
баня с тоалет
тераса
С опция за закупуване на гараж или външно парково място.
Сградата е изпълнена с качествени материали, съвременна архитектура и отлични общи части. Апартаментът е подходящ както за лично ползване, така и за инвестиция с цел отдаване под наем.
Локация:
Квартал Кайсиева градина – район с добра инфраструктура, удобен градски транспорт, магазини, училища и бърз достъп до основни пътни артерии.
📞 За повече информация и огледи – свържете се с нас.
Форма за запитване
Можете да се свържете с нас чрез формата или директно с брокера.
