Оферта №3906. Продава: тристаен апартамент Кайсиева градина
Основна информация
Описание
🌟 ТРИСТАЕН АПАРТАМЕНТ В НОВА ЖИЛИЩНА СГРАДА – КВ. КАЙСИЕВА ГРАДИНА 🌟
Съвременен дизайн • Перфектна локация • Инвестиция с висока стойност
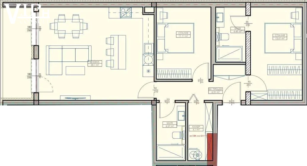
Предлагаме Ви просторен и функционален тристаен апартамент с обща квадратура 113.07 кв.м в новострояща се девететажна жилищна сграда, част от модерен и перспективен проект в един от най-динамично развиващите се квартали – Кайсиева градина.
🏡 Идеално разпределение:
Апартаментът съчетава уют, светлина и функционалност, осигурявайки комфорт както за сам човек или двойка, така и за инвеститори, търсещи имот с висока доходност.
Разпределение
Дневен тракт с трапезария
Две Спални
Килер
Две Бани и тоалет
Антре
Тераса
📍 Превъзходна локация:
Сградата е позиционирана на тихо и комуникативно място, с лесен и бърз достъп до основните точки в района. На пешеходно разстояние се намират:
магазини и супермаркети
аптеки
детски площадки
спирки на градски транспорт
заведения, услуги и удобства за ежедневието
🚗 Паркиране:
Живущите разполагат с възможност за закупуване на:
Открити паркоместа
Подземни паркоместа
Предлага се сигурност, удобство и спокойствие за автомобилите.
🧱 Качество на строителството:
Проектът се изпълнява с висококачествени материали и съвременни технологии, гарантиращи дълготрайност, енергийна ефективност и отлични общи части. Всеки детайл е прецизно планиран за максимален комфорт на бъдещите собственици.
⏱ Срок на завършване: 30 месеца
Осигурено е поетапно, контролирано и качествено строителство.
✨ Перфектен избор за първи дом или инвестиция!
Двустайният апартамент се отличава със своята функционалност, отлична локация и висока бъдеща стойност – имот, който предлага сигурност, удобство и модерен стандарт на живот.
Форма за запитване
Можете да се свържете с нас чрез формата или директно с брокера.
