Оферта №3792. Продава: тристаен апартамент Младост
Основна информация
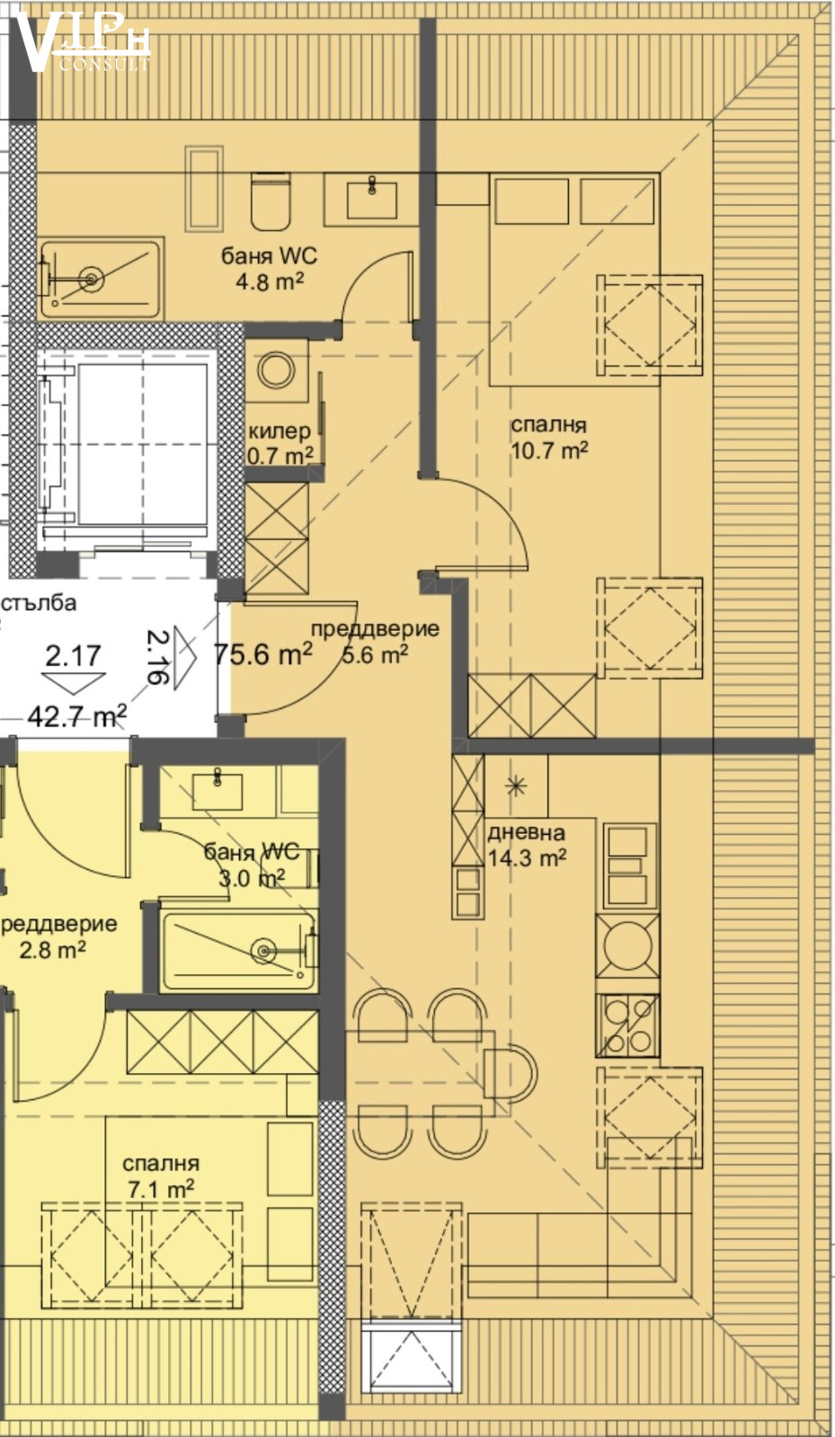
Обща площ: 91 м²
Застроена площ: 75.65 м²
Степен завършеност: БДС
Етаж: Етаж 6 /
6
Година:
2028
Изложение: Изток-запад
Описание
🏢 НОВ ПРОЕКТ! Тристаен апартамент в кв. Младост, гр. Варна
Предлагаме за продажба тристаен апартамент в нова жилищна сграда в един от най-предпочитаните райони на гр. Варна – кв. Младост.
📐 Площ: 90.97 кв.м
🚗 Възможност за закупуване на паркомясто
Разпределение:
Дневна с кухненски бокс
Спалня
Баня с тоалетна
Тераса
Входно антре
Характеристики:
✅ Ново, модерно строителство с висококачествени материали
✅ Функционално и удобно разпределение
✅ Светъл и топъл апартамент
✅ Отлична локация – близо до училища, детски градини, супермаркети и автобусни спирки
✅ Подходящ както за живеене, така и за инвестиция
📞 За повече информация и оглед:0897829129
Брокер - Мая Христова
×
Форма за запитване
Можете да се свържете с нас чрез формата или директно с брокера.
