Продаден
Оферта №3693. Продава: апартамент 12
Основна информация
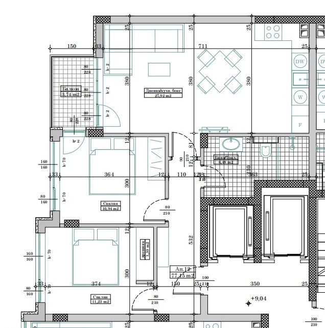
Обща площ: 94 м²
Застроена площ: 77.15 м²
Степен завършеност: БДС
Етаж: Етаж 4 /
11
Година:
2027
Изложение: Запад
Описание
Предлагаме за продажба просторен тристаен апартамент с изцяло източно изложение, осигуряващо светлина и комфорт през целия ден. Жилището се намира в модерна жилищна сграда с качествено изпълнение и удобна инфраструктура.
Характеристики:
• Функционално разпределение на помещенията
• Схема на плащане
• Опция за закупуване на паркомясто
• Отлична локация с бърз достъп до основни пътни артерии и услуги
Подходящ както за лично ползване, така и като инвестиция с висок потенциал.
0888 04 49 13 Виктория Ястребова
Форма за запитване
Можете да се свържете с нас чрез формата или директно с брокера.

