Продава : двустаен апартамент Изгрев
Основна информация
Етажи общо:
Описание
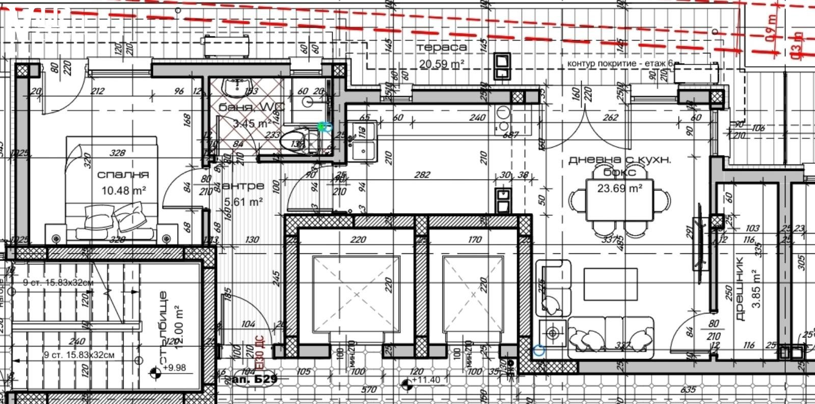
Двустаен  апартамент - кв.Изгрев
Предлагаме за продажба просторен двустаен апартамент с площ от 93  кв.м.,разположен на 5 - ти етаж в 10 - етажна сградас асансьор.
Разпределение 
- Просторен дневен тракт с кухненска част
- Уютна спалня
- Баня и тоалетна
- Коридор
- Тераса
Предимства на имота
- Големи и светли помещения
- Функционално разпределение
- Добре поддържана сграда с асансьор
- Отлична локация - близо до спирки, магазини,училища и детски градини. Болница Света Марина и ВМА.
- На пешеходно разстояние има автобусни спирки.
- С възможност за закупуване на подземно парко място.
Подходящ както за семейно жилище, така и за инвестиция с цел отдаване под наем.
За контакт - 0897829129
Мая Христова
Локация
Локация
Форма за запитване
Можете да се свържете с нас чрез формата или директно с брокера.
 
 












